- Lokacija:
- Veprinac, Opatija - Okolica
- Transakcija:
- Za prodaju
- Vrsta nekretnine:
- Građevinsko zemljište
- Cijena:
330.000 €
310.000 €
- Površina:
- 751 m2
RE/MAX centar nekretnina iz svoje ponude izdvaja građevinski teren 751 m2, U Kolavićima, Veprinac, iznad Opatije.
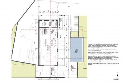
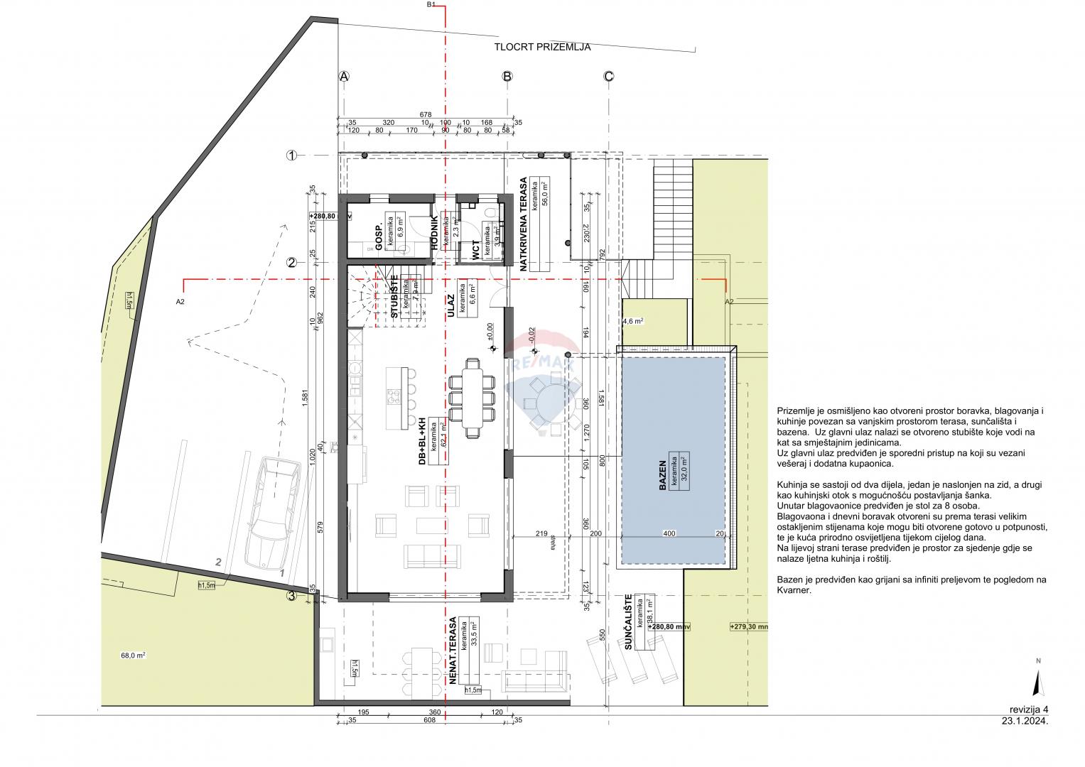
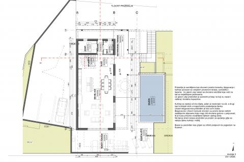
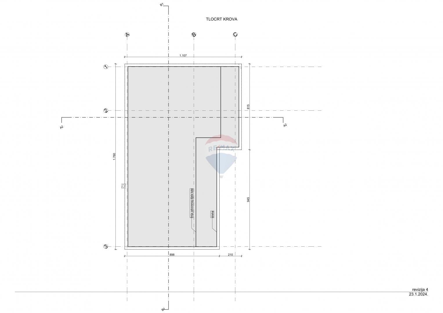
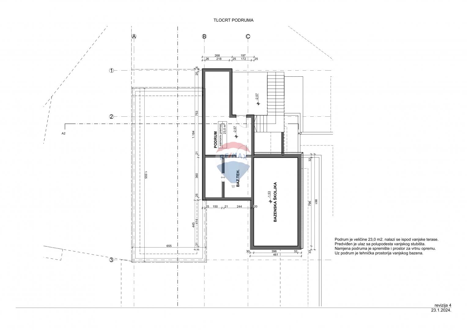
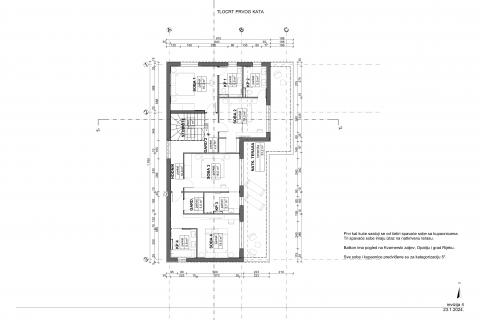
Teren ima projekt, građevinsku dozvolu i plaćene komunalije za kuću ukupne bruto površine 242,60 m2 zatvorenog prostora uz dodatnih 144,25 m2 otvorenih terasa, te 32 m2 bazena.
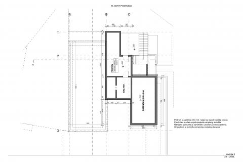
Kuća je katnosti P+1 (prizemlje + kat) i podrum.
U podrumu su predviđene pomoćne prostorije dok su prizemlje i kat predviđeni kao jedan dvoetažan 4S+DB stan povezan unutrašnjim stubištem.
Predviđena je kategorizacija 5* (4 spavaće sobe s 4 kupaone).
Zračna udaljenost od Opatije je svega 1 km, a kao još jednu prednost ovog zemljišta definitivno se mora navesti i prometna povezanost; zemljište se nalazi u neposrednoj blizini spoja na brzu cestu, tako da ste za čas u Opatiji ili Rijeci.
Teren je pravilnog oblika, jugoistočne orijentacije te se već s njega pruža prekrasan pogled na more, otoke, centar Opatije i Rijeku.
Teren ima asfaltiran prilaz, smješten je na brežuljku, konfiguracijski u blagom padu, na izrazito mirnoj poziciji, okruženoj zelenilom i prirodom s maksimalnom privatnošću.
Priključci vode i kanalizacije nalaze se do terena dok se struja nalazi na samom terenu.
Idealno zemljište za klijente koji žele izgraditi vilu za odmor s bazenom kategorizacije 5* s već svim ishodovanim dozvolama i plaćenim komunalijama, ali i za klijente koji žele za sebe izgraditi luksuznu vilu u zelenilu s pogledom na more i maksimalnom privatnošću, u blizini Opatije i svih ostalih sadržaja.
Teren ima projekt, građevinsku dozvolu i plaćene komunalije za kuću ukupne bruto površine 242,60 m2 zatvorenog prostora uz dodatnih 144,25 m2 otvorenih terasa, te 32 m2 bazena.
Kuća je katnosti P+1 (prizemlje + kat) i podrum.
U podrumu su predviđene pomoćne prostorije dok su prizemlje i kat predviđeni kao jedan dvoetažan 4S+DB stan povezan unutrašnjim stubištem.
Predviđena je kategorizacija 5* (4 spavaće sobe s 4 kupaone).
Zračna udaljenost od Opatije je svega 1 km, a kao još jednu prednost ovog zemljišta definitivno se mora navesti i prometna povezanost; zemljište se nalazi u neposrednoj blizini spoja na brzu cestu, tako da ste za čas u Opatiji ili Rijeci.
Teren je pravilnog oblika, jugoistočne orijentacije te se već s njega pruža prekrasan pogled na more, otoke, centar Opatije i Rijeku.
Teren ima asfaltiran prilaz, smješten je na brežuljku, konfiguracijski u blagom padu, na izrazito mirnoj poziciji, okruženoj zelenilom i prirodom s maksimalnom privatnošću.
Priključci vode i kanalizacije nalaze se do terena dok se struja nalazi na samom terenu.
Idealno zemljište za klijente koji žele izgraditi vilu za odmor s bazenom kategorizacije 5* s već svim ishodovanim dozvolama i plaćenim komunalijama, ali i za klijente koji žele za sebe izgraditi luksuznu vilu u zelenilu s pogledom na more i maksimalnom privatnošću, u blizini Opatije i svih ostalih sadržaja.
Karakteristike
- Namjena terena: stambena
- Površina građevinskog dijela: 751 m2
- Struja
- Voda
- Kanalizacija
- djelomično otvoren pogled
- Pogled na more: da
- Pogled - prekrasan!
- Jug
- Istok
- Udaljenost od mora: više od 1km
- U blizini glavne ceste / autoputa
- U mirnoj ulici
- U blizini parka/šume
