Zagreb, Srednjaci, stan u prizemlju s dvije spavaće sobe, 56m2

Cijena:
159.000 €
Površina:
56 m2
ID Kod:
300431011-625

Detalji nekretnine

Lokacija:
Srednjaci, Trešnjevka - Jug
Transakcija:
Za prodaju
Vrsta nekretnine:
Stan/Apartman
Ukupan broj soba:
3
Spavaće sobe:
2
Kupaonica:
1
WC:
1
Kat:
Prizemlje
Ukupno katova:
Prizemlje
Cijena:
159.000 €
Površina:
56 m2

Opis nekretnine

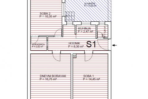
Prodaje se stan na Srednjacima u blizini Selske. Sačinjava ga cijela prizemna etaža manje kuće. Prostor potkrovlja iznad stana etažiran je i pripada drugom stanu u dvorišnom objektu. Stan se sastoji od tri prostrane sobe od kojih je trenutno jedna uređena kao dnevni boravak a dvije su spavaće sobe, manje kuhinje i kupaonice te toaleta.
Postavljena je nova PVC stolarija, grijanje je etažno plinsko, ugrađen je klima uređaj. Krov kuće je obnovljen.

Mirna ulica u kojoj se lako može parkirati. Odlična prometna povezanost na 300m od tramvaja na Horvaćanskoj ili minuta hoda to busa na Selskoj.
Vlasništvo je uredno, stan je etažiran, kuća ima uporabnu dozvolu pa je moguća kupnja stambenim kreditom.

Karakteristike

Ostale prostorije
  • Okućnica: nema okućnice
Karakteristike
  • Roštilj: nema
  • Nekretnina (stanje): dovršena
  • Stil gradnje: klasičan
  • Razred energetske učinkovitosti: U izradi
  • Lift: ne
  • Pristup invalidima: da
  • Dimnjak: ima
  • Nekretnina se prodaje/iznajmljuje: namještaj po dogovoru
  • Bazen: nema
  • Vrt: nema
Parking
  • Parking: ne
  • Natkriveni parking: ne
  • Povlašteni parking: ne
  • Garaža: ne
Režije - odvojene
  • Struja
  • Grijanje
  • Plin
  • Pričuva
  • Komunalije
Režije - zajedničke
  • Voda
Vrsta grijanja
  • Etažno centralno
Izvor topline
  • Plin
Infrastruktura
  • Voda
  • Struja
  • Plin
Pogled
  • otvoren pogled
  • Pogled na more: ne
Orijentacija
  • Jug
  • Zapad
  • Udaljenost od mora: više od 1km
Opis okruženja
  • U blizini glavne ceste / autoputa
  • U mirnoj ulici
  • U blizini javnog prijevoza
  • U blizini trgovine
 

Pošalji upit

Recite našem agentu što tražite

m2
m2