- Lokacija:
- Rovinj
- Transakcija:
- Za prodaju
- Vrsta nekretnine:
- Stan/Apartman
- Ukupan broj soba:
- 3
- Spavaće sobe:
- 2
- Kupaonica:
- 1
- WC:
- 1
- Kat:
- 1
- Ukupno katova:
- 2
- Cijena:
- 555.000 €
- Površina:
- 97,38 m2
U Rovinju prodajemo luksuznu zgradu stambenog tipa sa 6 stambenih jedinica.
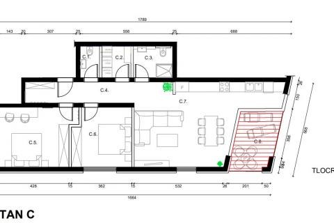
Predmetni stan C nalazi se na prvome katu ove moderne zgrade i broji ukupno 97,38 m2 korisne površine.
Dizalom se iz podzemne garaže stiže u stan koji se sastoji od dnevnog boravka, blagovaonice i kuhinje, dvije spavaće sobe, wc-a, praone, kupaonice, garderobe i hodnika, sve ukupne površine 89 m2. Ima pripadajuće parkirno mjesto u garaži 12,50 m2 i spremište u garaži 4m2. Sveukupna obračunska površina stana iznosi 97,38 m2.
Imati će ugrađeno podno grijanje na dizalicu toplice. Orijentacija sjever-zapad.
Cijena u pretprodaji iznosi 555.000eur
TEHNIČKI OPIS:
Vanjske obloge:
-ukopani zidovi podruma hidroizolirani katranskim folijama, termoizolirani XPS pločama 5 cm
-vanjski zidovi građevine termoizolirani EPS pločama 10 cm (veći dio) i 15 cm (manji dio)
-dio prizemlja je obložen dekorativnim kamenom
-ugrađena je kišna limarija - pocinčani bojani lim
-u krov je ugrađena termoizolacija 15 cm XPS ploče, te hidroizolacija
Unutarnje obloge:
-zidovi se žbukaju strojnom žbukom
-zidovi su obojani vrhunskim unutarnjim bojama i dekorativnim žbukama
-zidovi kupaonica se oblažu keramičkim pločicama
-opremljene kupaonice (wc, umivaonik, tuš sustavi, slavine) Talijanske i Njemačke proizvodnje
Podovi:
-pod podruma je zaglađeni beton
-podovi stanova su keramičke obloge i parket
-podovi terasa su keramičke obloge
-stepenište je obloženo kamenom
Vrata i prozori:
-vanjski otvori su aluminijska bravarija Schüco
-unutarnja vrata u stanovima su drvena
-ulazna vrata za stanove su negoriva T-30 (vatrootporna i protuprovalna)
-u potkrovlju su ugrađeni krovni prozori Velux
Sustav grijanja i priprema tople vode:
-svaki stan posjeduje svoj depurator pitke vode
-ugrađen je sustav podnog grijanja
-stanovi se dodatno griju i hlade sa unutarnjim jedinicama ventilokonvektorima (fan coil)
-priprema tople vode vrši se u bojlerima smještenima u strojarnicu, bojleri su također spojeni na toplinske pumpe
-toplinske pumpe tvrtke Daikin
Ostalo:
-zaštita od požara je osigurana unutarnjom i vanjskom hidrantskom mrežom, te prirodnom ventilacijom stubišta
Dizalo: dizalo tvrtke Kone
Predmetni stan C nalazi se na prvome katu ove moderne zgrade i broji ukupno 97,38 m2 korisne površine.
Dizalom se iz podzemne garaže stiže u stan koji se sastoji od dnevnog boravka, blagovaonice i kuhinje, dvije spavaće sobe, wc-a, praone, kupaonice, garderobe i hodnika, sve ukupne površine 89 m2. Ima pripadajuće parkirno mjesto u garaži 12,50 m2 i spremište u garaži 4m2. Sveukupna obračunska površina stana iznosi 97,38 m2.
Imati će ugrađeno podno grijanje na dizalicu toplice. Orijentacija sjever-zapad.
Cijena u pretprodaji iznosi 555.000eur
TEHNIČKI OPIS:
Vanjske obloge:
-ukopani zidovi podruma hidroizolirani katranskim folijama, termoizolirani XPS pločama 5 cm
-vanjski zidovi građevine termoizolirani EPS pločama 10 cm (veći dio) i 15 cm (manji dio)
-dio prizemlja je obložen dekorativnim kamenom
-ugrađena je kišna limarija - pocinčani bojani lim
-u krov je ugrađena termoizolacija 15 cm XPS ploče, te hidroizolacija
Unutarnje obloge:
-zidovi se žbukaju strojnom žbukom
-zidovi su obojani vrhunskim unutarnjim bojama i dekorativnim žbukama
-zidovi kupaonica se oblažu keramičkim pločicama
-opremljene kupaonice (wc, umivaonik, tuš sustavi, slavine) Talijanske i Njemačke proizvodnje
Podovi:
-pod podruma je zaglađeni beton
-podovi stanova su keramičke obloge i parket
-podovi terasa su keramičke obloge
-stepenište je obloženo kamenom
Vrata i prozori:
-vanjski otvori su aluminijska bravarija Schüco
-unutarnja vrata u stanovima su drvena
-ulazna vrata za stanove su negoriva T-30 (vatrootporna i protuprovalna)
-u potkrovlju su ugrađeni krovni prozori Velux
Sustav grijanja i priprema tople vode:
-svaki stan posjeduje svoj depurator pitke vode
-ugrađen je sustav podnog grijanja
-stanovi se dodatno griju i hlade sa unutarnjim jedinicama ventilokonvektorima (fan coil)
-priprema tople vode vrši se u bojlerima smještenima u strojarnicu, bojleri su također spojeni na toplinske pumpe
-toplinske pumpe tvrtke Daikin
Ostalo:
-zaštita od požara je osigurana unutarnjom i vanjskom hidrantskom mrežom, te prirodnom ventilacijom stubišta
Dizalo: dizalo tvrtke Kone
Ostale prostorije
- Kupaonica sa prozorom
- Kuhinja sa prozorom
- Spremište
- Hodnik
- Okućnica: nema okućnice
- Balkon/lođa/terasa
- Površina balkona/lođe/terase: 8,87 m2
- Godina izgradnje: 2023 god.
- Roštilj: nema
- Novogradnja
- Nekretnina (stanje): dovršena
- Stil gradnje: moderan
- Razred energetske učinkovitosti: U izradi
- Lift: da
- Pristup invalidima: da
- Dimnjak: nema
- Nekretnina se prodaje/iznajmljuje: namještaj po dogovoru
- Bazen: nema
- Vrt: nema
- Parking: da
- Parking (broj): 1
- Natkriveni parking: ne
- Povlašteni parking: ne
- Garaža: da
- Struja
- Voda
- Grijanje
- Pričuva
- Komunalije
- Klasično
- Etažno podno
- Klima uređaj
- Struja
- Dizalica topline
- Voda
- Struja
- Kanalizacija
- Internet
- Optički kabel
- Parlafon
- otvoren pogled
- Pogled na more: da
- Zapad
- Udaljenost od mora: 2. red
- U blizini centra
- U mirnoj ulici
- U blizini javnog prijevoza
- U blizini mora/plaže
