- Lokacija:
- Kaštelir, Kaštelir-Labinci
- Transakcija:
- Za prodaju
- Vrsta nekretnine:
- Kuća
- Ukupan broj soba:
- 8
- Spavaće sobe:
- 5
- Ukupno katova:
- 1
- Cijena:
- 1.245.000 €
- Površina:
- 323,50 m2
- Površina okućnice:
- 600 m2
U ponudi imamo modernu vilu koja se nalazi u manjem mjestu kraj Poreča i koja je udaljena 8 km od mora.
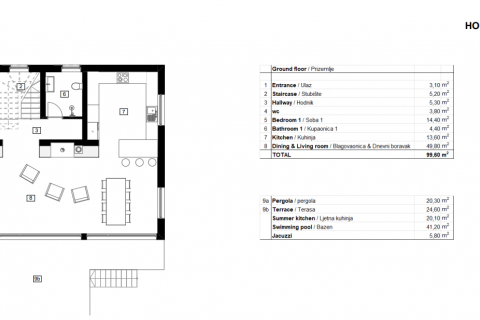
Na prizemlju je ulazni hodnik, wc, kuhinja sa blagovaonom, te jedna spavaća soba sa kupaonom.
Na katu, do kojeg se dolazi stepeništem nalaze se pet spavaćih soba sa kupaonicama te terasom od 16 m2.
Sa kata se dolazi do potkrovlja koji se sastoji od krovne terase sa pergolom ukupne veličine 60 m2.
Vila je u izgradnji,a prodaje se potpuno dovršena, namještena i opremljena vrhunskim uređajima i namještajem.
Veličina čestice je 958 m2, tlocrtno na kuću otpada oko 100 m2. Ostatak okućnice činit će bazen te veliko sunčalište.
Očekivani rok završetka radova je kraj 2024.godine.
Na prizemlju je ulazni hodnik, wc, kuhinja sa blagovaonom, te jedna spavaća soba sa kupaonom.
Na katu, do kojeg se dolazi stepeništem nalaze se pet spavaćih soba sa kupaonicama te terasom od 16 m2.
Sa kata se dolazi do potkrovlja koji se sastoji od krovne terase sa pergolom ukupne veličine 60 m2.
Vila je u izgradnji,a prodaje se potpuno dovršena, namještena i opremljena vrhunskim uređajima i namještajem.
Veličina čestice je 958 m2, tlocrtno na kuću otpada oko 100 m2. Ostatak okućnice činit će bazen te veliko sunčalište.
Očekivani rok završetka radova je kraj 2024.godine.
Ostale prostorije
- Kupaonica sa prozorom
- Kuhinja
- Kuhinja sa prozorom
- Spremište
- Hodnik
- Balkon/lođa/terasa
- Površina balkona/lođe/terase: 132,60 m2
- Vrsta kuće/vikendice: samostojeća
- Godina izgradnje: 2023 god.
- Novogradnja
- Nekretnina (stanje): nedovršena
- Stil gradnje: moderan
- Razred energetske učinkovitosti: U izradi
- Lift: ne
- Pristup invalidima: ne
- Dimnjak: nema
- Nekretnina se prodaje/iznajmljuje: nenamještena
- Tlocrtna površina nekretnine: 107 m2
- Parking: da
- Parking (broj): 2
- Natkriveni parking: ne
- Povlašteni parking: ne
- Garaža: ne
- Klasično
- Centralno
- Etažno podno
- Klima uređaj
- Struja
- Voda
- Struja
- djelomično otvoren pogled
- Pogled na more: ne
- Sjever
- Istok
- Udaljenost od mora: više od 1km
- U mirnoj ulici
