KAŠTELIR- vila s pogledom na more

Cijena:
1.100.000 €
Površina:
195 m2
ID Kod:
300391007-420

Detalji nekretnine

Lokacija:
Kaštelir, Kaštelir-Labinci
Transakcija:
Za prodaju
Vrsta nekretnine:
Kuća
Ukupan broj soba:
5
Spavaće sobe:
4
Kupaonica:
4
WC:
1
Ukupno katova:
2
Cijena:
1.100.000 €
Površina:
195 m2
Površina okućnice:
751 m2

Opis nekretnine

Prodaje se visokokvalitetna vila s bazenom. Smještena u mirnom mjestu, na udaljenosti od 10 km do mora.
Ova će novogradnja biti izgrađena u luksuznom resortu, planirani dovršetak izgradnje je 2025. godine.
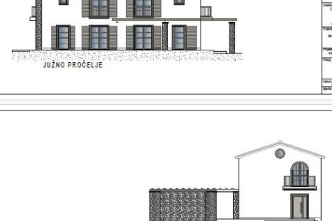
Kuća će biti površine 195 m2 sagrađena na parceli od 751 m2.
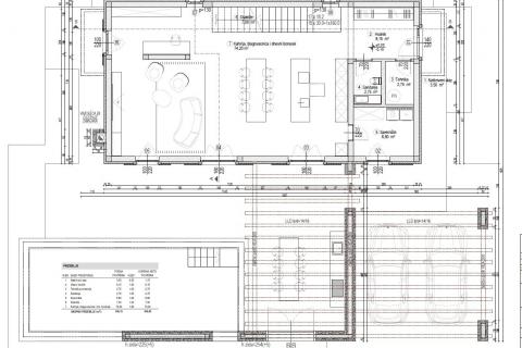
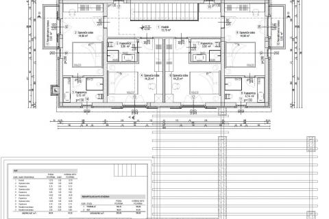
U prizemlju će se nalaziti dnevni boravak s open space kuhinjom i blagovaonom, spremište, toalet i tehnička prostorija. Dok će na gornjem katu biti četiri spavaće sobe svaka sa svojom kupaonom.
Iz dnevnog djela u prizemlju izlazit će se u lijepo uređeno dvorište s vanjskom kuhinjom, sunčalište te bazen od 40 m2.
Cijelo zemljište će biti pokriveno sa sistemom za navodnjavanje. Predviđeno je uređenje travnjaka i 3 autohtone masline.
Kompletno zemljište ogradit će se visokim zidom i ogradom što će pružati budućim vlasnicima privatnost, dok će veliki otvori u kamenim zidovima omogućiti predivan pogled prema moru.
Kupac će imati na raspolaganju dva natkrivena parkirna mjesta koja se nasipavaju ili oblažu drugom oblogom po odabiru arhitekta.
Kupovina nekretnine u fazi izgradnje omogućuje budućem vlasniku kuće odabir finalnog izgleda te biranje materijala podnih obloga.
Kuća će biti opremljena dizalicom topline s multi split sistemom te podnim grijanjem.
Vrhunska kvaliteta, lijepo okruženje, blizina sadržaja potrebnih za ugodan život te lijep pogled na more čine ovu nekretninu idealnom za ljubitelje luksuza i kvalitete.

Karakteristike

Ostale prostorije
  • Hodnik
  • Površina balkona/lođe/terase: 3,50+3,50 m2
Karakteristike
  • Vrsta kuće/vikendice: samostojeća
  • Godina izgradnje: 2025 god.
  • Novogradnja
  • Nekretnina (stanje): nedovršena
  • Stil gradnje: autohtoni
  • Razred energetske učinkovitosti: U izradi
  • Lift: ne
  • Pristup invalidima: ne
  • Dimnjak: ima
  • Nekretnina se prodaje/iznajmljuje: nenamještena
  • Tlocrtna površina nekretnine: 104 m2
Parking
  • Parking: da
  • Parking (broj): 2
  • Natkriveni parking: da
  • Povlašteni parking: ne
  • Garaža: ne
Vrsta grijanja
  • Klasično
  • Etažno podno
Izvor topline
  • Struja
  • Dizalica topline
Infrastruktura
  • Voda
  • Struja
Pogled
  • otvoren pogled
  • Pogled na more: da
Orijentacija
  • Jug
  • Zapad
  • Udaljenost od mora: više od 1km
Opis okruženja
  • U blizini centra
  • U mirnoj ulici
  • U blizini škole/vrtića/igrališta
  • U blizini trgovine
  • U blizini parka/šume
 

Pošalji upit

Recite našem agentu što tražite

m2
m2