- Lokacija:
- Šajini, Barban
- Transakcija:
- Za prodaju
- Vrsta nekretnine:
- Kuća
- Ukupan broj soba:
- 8
- Spavaće sobe:
- 6
- Ukupno katova:
- Prizemlje
- Cijena:
- 245.000 €
- Površina:
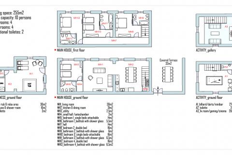
- 255 m2
Istra, Manjadvorci -veliko imanje sa idejnim projektom
RE/MAX Centar nekretnina izdvaja iz svoje ponude ovu interesantnu nekretninu.
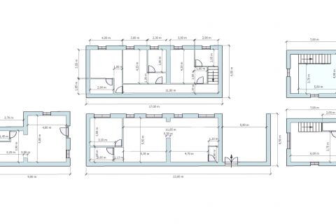
U malome mjestu, u srcu južne Istre, u sklopu općine Barban i svega 7km od mora, smješteno je ovo lijepo imanje koje se prostire na 1.850m2 zemljišta te se sastoji od 3 zgrade ukupne neto korisne površine 255m2.
Ono čime se ovo gospodarstvo izdvaja od velikog broja objekata te ga čini posebno zanimljivim za investiciju je upravo prostor.
Nadalje, iako su susjedne kuće u neposrednom dodiru s objektima u pitanju, privatnost je zaštićena obzirom da prozori susjednih kuća ne gledaju izravno u dvorište.
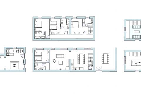
Idejno rješenje koje je napravljeno bazira se na glavnoj kući, wellness objektu te activity objektu.
U sklopu glavne kuće, površine 165m2, u prizemnom bi dijelu bila smještena kuhinja, tehnička prostorija, sala za ručavanje, dnevni boravak te jedna spavaća soba s pripadajućom kupaonom. Na katu su pak predviđene dodatne 3 spavaće sobe s pripadajućim kupaonama, a uz glavnu je kuću smještena i natkrivena terasa površine 33m2 na kojoj je predviđena ljetna kuhinja i prostor za ručavanje u eksterijeru.
U zgradi 2, površine 40m2, zamišljen je wellness prostor, odnosno prostor koji bi uz tuš-saunu i hidromasažni bazen raspolagao i malom relax zonom te naravno toaletom, a predviđen je i smart TV s ozvučenjem kako bi ugoda boravka bila maksimalna.
Treći je objekt namijenjen za zabavu, odnosno u prizemnom bi dijelu, površine 30m2, bio smješten biljar, elektronički pikado i mini-bar te bi i taj prostor bio opremljen smart TV-om i ozvučenjem. U prizemlju je smješten i toalet. Galerija, površine 20m2, nudila bi daljnji dnevni boravak sa igraćom konzolom i kućnim kinom.
Eksterijer bi, uz već spomenutu ljetnu kuhinju i veliku natkrivenu terasu, nudio vanjski bazen površine 32m2, sportsko-rekreativne sadržaje (odbojka/badminton) te sadržaje za djecu.
Procijenjena investicija za kreiranje gore navedenog, koja obuhvaća sveukupne radove i opremanje, kreće se u okvirima 350.000€ dok se očekivani bruto prihod na tržištu iznajmljivanja kreće u okvirima od 92.000€ do 107.000€ po sezoni.“
RE/MAX Centar nekretnina izdvaja iz svoje ponude ovu interesantnu nekretninu.
U malome mjestu, u srcu južne Istre, u sklopu općine Barban i svega 7km od mora, smješteno je ovo lijepo imanje koje se prostire na 1.850m2 zemljišta te se sastoji od 3 zgrade ukupne neto korisne površine 255m2.
Ono čime se ovo gospodarstvo izdvaja od velikog broja objekata te ga čini posebno zanimljivim za investiciju je upravo prostor.
Nadalje, iako su susjedne kuće u neposrednom dodiru s objektima u pitanju, privatnost je zaštićena obzirom da prozori susjednih kuća ne gledaju izravno u dvorište.
Idejno rješenje koje je napravljeno bazira se na glavnoj kući, wellness objektu te activity objektu.
U sklopu glavne kuće, površine 165m2, u prizemnom bi dijelu bila smještena kuhinja, tehnička prostorija, sala za ručavanje, dnevni boravak te jedna spavaća soba s pripadajućom kupaonom. Na katu su pak predviđene dodatne 3 spavaće sobe s pripadajućim kupaonama, a uz glavnu je kuću smještena i natkrivena terasa površine 33m2 na kojoj je predviđena ljetna kuhinja i prostor za ručavanje u eksterijeru.
U zgradi 2, površine 40m2, zamišljen je wellness prostor, odnosno prostor koji bi uz tuš-saunu i hidromasažni bazen raspolagao i malom relax zonom te naravno toaletom, a predviđen je i smart TV s ozvučenjem kako bi ugoda boravka bila maksimalna.
Treći je objekt namijenjen za zabavu, odnosno u prizemnom bi dijelu, površine 30m2, bio smješten biljar, elektronički pikado i mini-bar te bi i taj prostor bio opremljen smart TV-om i ozvučenjem. U prizemlju je smješten i toalet. Galerija, površine 20m2, nudila bi daljnji dnevni boravak sa igraćom konzolom i kućnim kinom.
Eksterijer bi, uz već spomenutu ljetnu kuhinju i veliku natkrivenu terasu, nudio vanjski bazen površine 32m2, sportsko-rekreativne sadržaje (odbojka/badminton) te sadržaje za djecu.
Procijenjena investicija za kreiranje gore navedenog, koja obuhvaća sveukupne radove i opremanje, kreće se u okvirima 350.000€ dok se očekivani bruto prihod na tržištu iznajmljivanja kreće u okvirima od 92.000€ do 107.000€ po sezoni.“
Karakteristike
- Vrsta kuće/vikendice: u nizu
- Nekretnina (stanje): nedovršena
- Stil gradnje: autohtoni
- Razred energetske učinkovitosti: Izuzeto od obveze
- Lift: ne
- Pristup invalidima: uz manju adaptaciju
- Dimnjak: ima
- Nekretnina se prodaje/iznajmljuje: nenamještena
- Tlocrtna površina nekretnine: 255 m2
- Parking: da
- Natkriveni parking: da
- Povlašteni parking: ne
- Garaža: ne
- nema
- nema
- Voda
- Struja
- djelomično otvoren pogled
- Pogled na more: ne
- Sjever
- Jug
- Istok
- Udaljenost od mora: više od 1km
- Predgrađe
- U blizini glavne ceste / autoputa
- U mirnoj ulici
- U blizini parka/šume
