- Lokacija:
- Cere, Žminj
- Transakcija:
- Za prodaju
- Vrsta nekretnine:
- Građevinsko zemljište
- Cijena:
- 69.000 €
- Površina:
- 621 m2
RE/MAX Centar nekretnina iz svoje ponude izdvaja građevinsko zemljište s važećom građevinskom dozvolom.
Prodaje se građevinsko zemljište površine 621 m2 u naselju Cere, udaljeno svega 5 minuta vožnje od Žminja. Lokacija je mirna, s dobrim pristupom i okružena zelenilom i maslinicima.
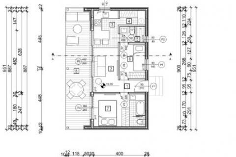
Zemljište ima važeću građevinsku dozvolu za izgradnju prizemne kuće moderne arhitekture, ukupne površine 83 m2, s bazenom. Svi priključci (voda, struja) nalaze se na terenu, pristupni put uredan.
Ugovor s izvođačem radova već je sklopljen, uključuje izgradnju kuće po sistemu “ključ u ruke”, uz dogovorenu cijenu i završetak radova unutar 2 mjeseca. Kupac može odmah započeti gradnju, prema postojećem projektu i potpisanom ugovoru.
Zemljište je u potpunosti spremno za realizaciju – bez dodatnih čekanja, uz jasno definirane uvjete gradnje.
Vlasništvo je uredno.
Prodaje se građevinsko zemljište površine 621 m2 u naselju Cere, udaljeno svega 5 minuta vožnje od Žminja. Lokacija je mirna, s dobrim pristupom i okružena zelenilom i maslinicima.
Zemljište ima važeću građevinsku dozvolu za izgradnju prizemne kuće moderne arhitekture, ukupne površine 83 m2, s bazenom. Svi priključci (voda, struja) nalaze se na terenu, pristupni put uredan.
Ugovor s izvođačem radova već je sklopljen, uključuje izgradnju kuće po sistemu “ključ u ruke”, uz dogovorenu cijenu i završetak radova unutar 2 mjeseca. Kupac može odmah započeti gradnju, prema postojećem projektu i potpisanom ugovoru.
Zemljište je u potpunosti spremno za realizaciju – bez dodatnih čekanja, uz jasno definirane uvjete gradnje.
Vlasništvo je uredno.
Karakteristike
- Namjena terena: GRAĐEVINSKO ZEMLJIŠTE
- Površina građevinskog dijela: 621 m2
- Voda
- Struja
- Voda
- Struja
- otvoren pogled
- Sjever
- Jug
- U blizini glavne ceste / autoputa
- U blizini javnog prijevoza
- U blizini parka/šume
