- Lokacija:
- Krivi Put, Senj
- Transakcija:
- Za prodaju
- Vrsta nekretnine:
- Građevinsko zemljište
- Cijena:
90.000 €
68.000 €
- Površina:
- 421 m2
Prodajemo građevinsko zemljište od 421m2, sa građevinskom dozvolom za građenje građevine stambene namjene (P+1) sa bazenom; projekt kuće je predviđen za kategorizaciju kuće za odmor sa 5 zvjezdica.
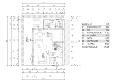
Po projektu, u prizemlju kuće će se nalaziti ulazni prostor, wc, kuhinja s bagovaonicom, soba s pripadajućom
kupaonicom te dnevni boravak sa izlazom na južnu natkrivenu terasu.
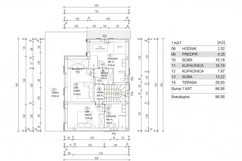
Unutarnje stubište povezuje prizemlje sa 1.katom kuće, gdje će se nalaziti dvije spavaće sobe i dvije kupaonice sa wc-om sa izlazom na nenatkrivenu terasu, sa koje se pruža prekrasan pogled na prirodu i more.
U međuprostoru regulacijske i građevinske linije izgraditi će se pristupni most za potrebe parkiranja vozila jer se
parcela nalazi ispod razine pristupne ceste, te se konstrukcije ne obračunavaju u izgrađenost
parcele.
Pješački i kolni pristup parceli omogućen je sa istočne strane preko postojećeg puta.
Krovište je dvostrešno nagiba 23°
Uz stambenu građevinu planira se izgradanja bazena dimenzija 3,0 * 8,00 m.
Opskrba vodom će se riješiti izgradnjom cisterne za vodu, a odvodnja otpadnih voda priključkom na nepropusnu
septičku jamu.
S obzirom na jednu jedinicu za stanovanje (stambeni prostor ), predviđa se 1 mjerno
mjesto (brojilo).
Po projektu, u prizemlju kuće će se nalaziti ulazni prostor, wc, kuhinja s bagovaonicom, soba s pripadajućom
kupaonicom te dnevni boravak sa izlazom na južnu natkrivenu terasu.
Unutarnje stubište povezuje prizemlje sa 1.katom kuće, gdje će se nalaziti dvije spavaće sobe i dvije kupaonice sa wc-om sa izlazom na nenatkrivenu terasu, sa koje se pruža prekrasan pogled na prirodu i more.
U međuprostoru regulacijske i građevinske linije izgraditi će se pristupni most za potrebe parkiranja vozila jer se
parcela nalazi ispod razine pristupne ceste, te se konstrukcije ne obračunavaju u izgrađenost
parcele.
Pješački i kolni pristup parceli omogućen je sa istočne strane preko postojećeg puta.
Krovište je dvostrešno nagiba 23°
Uz stambenu građevinu planira se izgradanja bazena dimenzija 3,0 * 8,00 m.
Opskrba vodom će se riješiti izgradnjom cisterne za vodu, a odvodnja otpadnih voda priključkom na nepropusnu
septičku jamu.
S obzirom na jednu jedinicu za stanovanje (stambeni prostor ), predviđa se 1 mjerno
mjesto (brojilo).
Karakteristike
- Namjena terena: Stambena gradnja
- bez infrastrukture
- Voda
- Struja
- otvoren pogled
- Pogled na more: da
- Jug
- U mirnoj ulici
- U blizini parka/šume
