Inizio
Immobiliare
Appartamenti
Da affittare
In vendita
Garage-Box
Uffici
Case
Non strutturale terreni
Trame
Solo nella nostra offerta
Nuova costruzione
Primorsko-goranska županija
Zagreb
Istria
Posizioni
RCN Squadra
Di noi
RCN News
Contatto
Italiano
Hrvatski
English
Italiano
русский
Deutsch
Slovenščina
Nederlands
Inizio
Immobiliare
Appartamenti
Da affittare
In vendita
Garage-Box
Uffici
Case
Non strutturale terreni
Trame
Solo nella nostra offerta
Nuova costruzione
Primorsko-goranska županija
Zagreb
Istria
Posizioni
RCN Squadra
Di noi
RCN News
Contatto
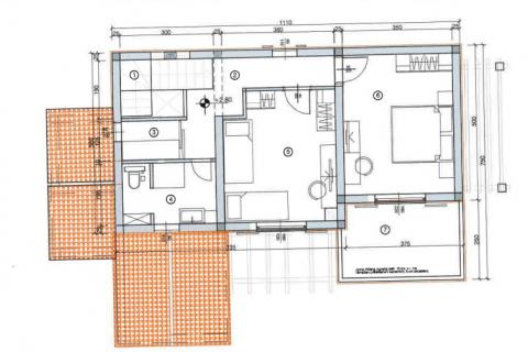
Casa Ljutići, Malinska-Dubašnica, 158m2
Prezzo
:
650.000 €
Superficie
:
158 m
2
ID codice
:
300621003-1260
Aggiungi ai preferiti
Stampa
Condividi
Camere
:
4
Camere da letto
:
3
Bagni
:
2
Detagli immobiliari
Località
:
Ljutići, Malinska-Dubašnica
Contratto
:
Vendita
Tipologia
:
Casa
Camere
:
4
Camere da letto
:
3
Bagni
:
2
Totale dei piani
:
2
Prezzo
:
650.000 €
Superficie
:
158 m
2
Area giardino
:
510 m
2
Ulteriori informazioni
Parcheggio
Parcheggio:
Si
Parcheggio:
3
Parcheggio con autorizzazione:
No
Garage:
No
Infrastrutture
Aqua
Elettricità
Vista
Vista aperta
Con vista al mare:
Si
Orientamento
Sud
Ovest
Distanza dal mare:
Mirela Petrović
Rappresentante di vendita
Cell
+385 91 641 3300
[email protected]
Invia la richiesta
Nome:
*
Cognome:
E-mail:
*
Telefono:
*
Il tuo messaggio:
*
Ho letto e accetto
l'informativa sulla privacy
.
Cerca
In vendita/affitto:
In vendita/affitto
Vendita
Affitto
Tipologia:
Tipologia
Appartamento
Casa
Attività commerciale
-Ufficio
Terreno edificabile
Terreno non edificabile
Garage-Box
Regione:
Regione
Bjelovarsko-bilogorska županija
Dubrovačko-neretvanska županija
Grad Zagreb
Istarska županija
Karlovačka županija
Koprivničko-križevačka županija
Krapinsko-zagorska županija
Ličko-senjska županija
Međimurska županija
Primorsko-goranska županija
Šibensko-kninska županija
Sisačko-moslavačka županija
Splitsko-dalmatinska županija
Varaždinska županija
Zadarska županija
Zagrebačka županija
Citta:
Citta
DubaiDubai
Čazma
Daruvar
Velika Trnovitica
Korčula
Brezovica
Črnomerec
Donja Dubrava
Donji Grad
Gornja Dubrava
Gornji Grad - Medveščak
Maksimir
Novi Zagreb - Istok
Novi Zagreb - Zapad
Peščenica - Žitnjak
Podsljeme
Podsused - Vrapče
Sesvete
Stenjevec
Trešnjevka - Jug
Trešnjevka - Sjever
Trnje
Zagreb - Okolica
Bale
Barban
Brtonigla
Buje
Buzet
Cerovlje
Fažana
Funtana
Gračišće
Grožnjan
Kanfanar
Karojba
Kaštelir-Labinci
Kršan
Labin
Lanišće
Ližnjan
Lupoglav
Marčana
Medulin
Motovun
Novigrad
Oprtalj
Pazin
Pazin - Okolica
Pićan
Poreč
Pula
Raša
Rovinj
Sveta Nedelja
Sveti Lovreč
Sveti Petar U Šumi
Svetvinčenat
Tar-Vabriga
Tinjan
Umag
Višnjan
Vižinada
Vodnjan
Vrsar
Žminj
Barilovići
Bosiljevo
Duga Resa
Generalski Stol
Josipdol
Karlovac
Karlovac - Okolica
Ogulin
Ozalj
Plaški
Rakovica
Ribnik
Saborsko
Slunj
Tounj
Vojnić
Križevci
Budinščina
Desinić
Donja Stubica
Klanjec
Krapina - Okolica
Krapinske Toplice
Oroslavje
Radoboj
Stubičke Toplice
Tuhelj
Zagorska Sela
Zlatar
Brinje
Donji Lapac
Gospić
Karlobag
Novalja
Otočac
Plitvička Jezera
Senj
Udbina
Nedelišće
Bakar
Baška
Brod Moravice
Čabar
Čavle
Cres
Crikvenica
Delnice
Dobrinj
Fužine
Jelenje
Kastav
Klana
Kostrena
Kraljevica
Krk
Lokve
Lovran
Mali Lošinj
Malinska-Dubašnica
Matulji
Mošćenička Draga
Mrkopalj
Novi Vinodolski
Omišalj
Opatija
Opatija - Okolica
Punat
Rab
Ravna Gora
Rijeka
Skrad
Vinodolska Općina
Viškovo
Vrbnik
Vrbovsko
Drniš
Primošten
Tisno
Vodice
Glina
Hrvatska Kostajnica
Jasenovac
Lekenik
Novska
Petrinja
Popovača
Sisak
Sisak - Okolica
Bol
Dicmo
Hvar
Imotski
Stari Grad
Bednja
Varaždin
Kolan
Obrovac
Pag
Pašman
Preko
Starigrad
Sveti Filip I Jakov
Vrsi
Zadar
Zadar - Okolica
Bistra
Brckovljani
Brdovec
Dubravica
Dugo Selo
Dugo Selo - Okolica
Gradec
Ivanić-Grad
Jakovlje
Jastrebarsko
Jastrebarsko - Okolica
Klinča Sela
Kloštar Ivanić
Kravarsko
Luka
Marija Gorica
Orle
Pisarovina
Pokupsko
Preseka
Pušća
Rugvica
Samobor
Samobor - Okolica
Stupnik
Sveta Nedelja
Sveti Ivan Zelina
Velika Gorica
Velika Gorica - Okolica
Vrbovec
Zaprešić
Zaprešić - Okolica
La zona della città:
La zona della città
Bakar-dio
Hreljin
Krasica
Kukuljanovo
Plosna
Škrljevo
Zlobin
Bale
Golaš
Krmed
Barban
Bičići
Draguzeti
Grandići
Hrboki
Jurićev Kal
Manjadvorci
Medančići
Orihi
Petehi
Puntera
Rebići
Rojnići
Šajini
Sutivanac
Želiski
Belaj
Belajske Poljice
Svojić
Baška
Batomalj
Draga Bašćanska
Jurandvor
Brezova Gora
Gornja Bistra
Bol
Bosiljevo
Varoš Bosiljevski
Gračec
Hrebinec
Lupoglav
Brdovec
Brebernica
Brezovica
Demerje
Donji Dragonožec
Donji Trpuci
Drežnik Brezovički
Goli Breg
Gornji Dragonožec
Grančari
Hudi Bitek
Kupinečki Kraljevec
Odranski Obrež
Brinje
Vodoteč
Brod Moravice
Doluš
Lokvica
Završje
Brtonigla
Fiorini
Karigador
Nova Vas
Budinšćina
Baredine
Bibali
Buje
Kaldanija
Kaštel
Krasica
Kršete
Kućibreg
Merišće
Momjan
Buzet
Čiritež
Hum
Juradi
Krušvari
Roč
Ročko Polje
Senj
Sovinjak
Stanica Roč
Veli Mlun
Vrh
Čabar
Gerovo
Gorači
Hrib
Plešce
Prezid
Tršće
Buzdohanj
Čavle
Cernik
Grobnik
Mavrinci
Platak
Soboli
Zastenice
Čazma
Gornji Draganec
Cerovlje
Draguć
Gologorički Dol
Gradinje
Grimalda
Novaki Pazinski
Previž
Cres
Mali Podol
Martinšćica
Valun
Crikvenica
Dramalj
Jadranovo
Selce
Bijenik
Črnomerec
Fraterščica
Gornje Vrapče
Jelenovac
Kustošija
Mikulići
Šestinski dol
Sveti Duh
Vrhovec
Daruvar
Belo
Brod na Kupi
Crni Lug
Dedin
Delnice
Gornji Okrug
Gornji Turni
Iševnica
Lučice
Malo Selo
Radočaj Brodski
Zalesina
Turnišće Desinićko
Velika Horvatska
Kraj
Čižići
Dobrinj
Gabonjin
Gostinjac
Hlapa
Klimno
Kras
Polje
Šilo
Soline
Sužan
Sveti Vid Dobrinjski
Donja Dubrava
Trnava
Donja Stubica
Donji grad
Nebljusi
Drinovci
Dubai
Bobovec Rozganski
Belajska Vinica
Duga Resa
Mrežnički Novaki
Dugo Selo - Jug
Leprovica
Prozorje
Fažana
Valbandon
Valbandon
Funtana
Belo Selo
Benkovac Fužinski
Fužine
Lič
Slavica
Vrata
Duga Gora
Erdelj
Generalski Stol
Slatina Pokupska
Branovec
Čučerje
Dankovec
Dubec
Granešina
Miroševec
Oporovec
Britanac
Centar
Kraljevec
Ksaver
Medveščak
Pantovčak
Šalata
Zelengaj
Centar
Batlug
Bazgalji
Gračišće
Jakačići
Fuka
Bijele Zemlje
Grožnjan
Makovci
Martinčići
Šterna
Završje
Hrvatska Kostajnica
Velo Grablje
Imotski
Centar Ivanić-Grad
Jakovlje
Tanac
Donja Jaska
Donja Reka
Donji Desinec
Sveta Jana
Brnelići
Dražice
Jelenje
Martinovo Selo
Podhum
Trnovica
Cerovnik
Josipdol
Oštarije
Sabljaki Modruški
Vojnovac
Barat
Brajkovići
Dubravci
Jural
Kanfanar
Korenići
Kurili
Ladići
Marići
Maružini
Mrgani
Okreti
Šorići
Sošići
Cesarica
Karlobag
Lukovo Šugarje
Dubovac
Grabrik
Hrnetić-Novaki
Novi Centar
Švarča
Turanj
Zvijezda
Brođani
Cerovac Vukmanićki
Donja Trebinja
Gornja Trebinja
Skakavac
Karojba
Novaki Motovunski
Rakotule
Škropeti
Bani
Belići
Brestovice
Brnčići
Ćikovići
Kastav
Pavletići
Rešetari
Rubeši
Spinčići
Tometići
Trinajstići
Žegoti
Brnobići
Cerjani
Kaštelir
Kovači
Krančići
Labinci
Rogovići
Tadini
Valentići
Breza
Klana
Lisac
Škalnica
Klanjec
Donja Zdenčina
Kupinec
Bešlinec
Kloštar Ivanić
Kolan
Korčula
Doričići
Glavani
Kostrena
Kostrena Sveta Lucija
Martinšćica
Paveki
Perovići
Plešići
Randići
Rožmanići
Vrh Martinšćice
Žurkovo
Bakarac
Kraljevica
Šmrika
Gornja Pačetina
Straža Krapinska
Vidovec Petrovski
Mala Erpenja
Gladovec Kravarski
Gornji Hruševec
Carevdar
Bajčići
Brzac
Kornić
Krk
Lakmartin
Linardići
Milohnići
Pinezići
Skrbčići
Vrh
Kršan
Plomin
Šušnjevica
Zagorje
Duga Luka
Labin
Rabac
Dane
Lanišće
Račja Vas
Slum
Vodice
Donji Vukojevac
Lekenik
Pešćenica
Jadreški
Ližnjan
Muntić
Šišan
Valtura
Valtura
Homer
Lokve
Mrzla Vodica
Sopač
Liganj
Lovran
Lovranska Draga
Medveja
Tuliševica
Pluska
Brest Pod Učkom
Dolenja Vas
Lesišćina
Lupoglav
Semić
Vranja
Gornji Bukovac
Laščina
Maksimir
Remete
Srebrnjak
Svetice
Artatore
Belej
Mali Lošinj
Nerezine
Punta Križa
Sveti Jakov
Ustrine
Veli Lošinj
Bogovići
Kremenići
Ljutići
Malinska
Milčetići
Milovčići
Porat
Sveti Anton
Sveti Vid-Miholjice
Vantačići
Belavići
Bratulići
Cokuni
Divšići
Duga Uvala
Duga Uvala okolica
Filipana
Hreljići
Kavran
Krnica
Kujići
Loborika
Mali Vareški
Marčana
Mutvoran
Orbanići
Pavićini
Peruški
Pinezići
Prodol
Rakalj
Šarići
Šegotići
Veliki Vareški
Kraj Donji
Trstenik
Brdce
Bregi
Brešca
Jurdani
Jušići
Kučeli
Lipa
Mali Brgud
Matulji
Mihotići
Mučići
Pasjak
Pavlovac
Permani
Rukavac
Rupa
Šapjane
Veli Brgud
Zaluki
Žejane
Zvoneća
Banjole
Medulin
Pješčana Uvala
Pomer
Premantura
Vinkuran
Vintijan
Brseč
Donji Kraj
Golovik
Kalac
Martina
Mošćenice
Mošćenička Draga
Obrš
Sveta Jelena
Zagore
Motovun
okolica
Sveti Bartol
Begovo Razdolje
Brestova Draga
Mrkopalj
Sunger
Tuk Mrkopaljski
Tuk Vojni
Črečan
Gajac
Novalja
Stara Novalja
Jakov Polje
Klenovica
Ledenice
Novi Vinodolski
Povile
Sibinj Krmpotski
Smokvica Krmpotska
Buzin
Dugave
Veliko Polje
Blato
Botinec
Hrašće Turopoljsko
Kajzerica
Lučko
Odra
Savski gaj
Siget
Sveta Klara
Bužinija
Dajla
Mareda
Novigrad
Novska
Kruševo
Desmerice
Donje Dubrave
Drežnica
Gornje Dubrave
Jasenak
Ogulin
Otok Oštarijski
Ponikve
Ribarići
Vitunj
Zagorje
Njivice
Omišalj
Opatija
Opatija - Centar
Opatijska rivijera
Plahuti
Punta Kolova
Tošina
Volosko
Dobreć
Ičići
Ika
Mala Učka
Oprić
Pobri
Poljane
Veprinac
Čepić
Gradinje
Oprtalj
Pirelići
Sveti Ivan
Vižintini Vrhi
Zrenj
Bukevje
Obed
Krušljevo Selo
Stubička Slatina
Brlog
Čovići
Ličko Lešće
Otočac
Trg
Vrhovac
Pag
Šimuni
Ždrelac
Centar
Pazinska jama
Rusijani
Stari Pazin
Beram
Bertoši
Grdoselo
Heki
Ježenj
Kašćerga
Kršikla
Lindar
Lovrin
Trviž
Zabrežani
Zamask
Zarečje
Borovje
Donje Svetice
Ferenščica
Folnegovićevo naselje
Ivanja Reka
Petruševec
Resnik
Vukomerec
Begovići
Moščenica
Petrinja
Pićan
Bratina
Gradec Pokupski
Jamnica Pisarovinska
Lučelnica
Pisarovina
Velika Jamnička
Janja Gora
Jezero I Dio
Kunić
Lapat
Plaški
Pothum Plaščanski
Korenica
Plitvička Jezera
Gračani
Markuševec
Mlinovi
Šestine
Bizek
Borčec
Gajnice
Vrapče
Lijevi Štefanki
Opatija
Strezojevo
Gornja Gračenica
Popovača
Antonci
Baderna
Bašarinka
Bonaci
Bratovići
Buići
Červar-Porat
Dračevac
Filipini
Frata
Fuškulin
Jasenovica
Jehnići
Jurići
Kadumi
Kukci
Ladrovići
Matulini
Mihatovići
Mihelići
Mugeba
Mušalež
Nova Vas
Perci
Poreč
Poreč okolica
Radmani
Štifanići
Stranići kod Nove Vasi
Šušnjići
Valkarin
Veli Maj
Vrvari
Vržnaveri
Žbandaj
Rivanj
Hruškovica
Primošten
Arena
Arsenal
Busoler
Centar
Dolinka
Gregovica
Kaštanjer
Monteserpo - Komunal
Monvidal
Nova Veruda
okolica Pule
Padulj
Šijana
Šikići
Širi centar
Štinjan
Stoja
Valdebek
Valsaline
Veli vrh
Veruda
Vidikovac
Punat
Stara Baška
Donja Pušća
Gornja Pušća
Banjol
Barbat na Rabu
Kampor
Lopar
Mundanije
Palit
Rab
Supetarska Draga
Radoboj
Drežnik Grad
Irinovac
Nova Kršlja
Drenje
Kunj
Ravni
Skitača
Sveta Marina
Sveti Lovreč Labinski
Trget
Trgetari
Kupjak
Leskova Draga
Ravna Gora
Šije
Stara Sušica
Stari Laz
Martinski Vrh
Banderovo
Belveder
Bivio
Brajda
Bulevard
Centar
Costabella
Donja Vežica
Draga
Drenova
Gornja Vežica
Grbci
Hosti
Kačjak
Kantrida
Kozala
Krimeja
Krnjevo
Marčeljeva Draga
Martinkovac
Mlaka
Orehovica
Pećine
Pehlin
Podmurvice
Potok
Pulac
Rastočine
Rujevica
Škurinje
Srdoči
Stari Grad
Sušačka draga
Sušak
Sveti Kuzam
Svilno
Tibljaši
Tonžino
Trsat
Turnić
Vojak
Zamet
Rovinj
Rovinjsko Selo
Hrušćica
Novaki Oborovski
Oborovo
Rugvica
Svibje
Trstenik Nartski
Lička Jesenica
Centar
Giznik
Bregana
Klake
Mala Rakovica
Molvice
Rakov Potok
Jablanac
Krivi Put
Senj
Starigrad
Stinica
Sveti Juraj
Brestje
Gaišće
Moravče
Sesvete
Sesvetska sela
Sesvetski Kraljevec
Vugrovec Donji
Đurđekovec
Caprag/Željezara
Centar
Galdovo
Viktorovac
Zeleni brijeg
Gornje Komarevo
Sela
Divjake
Hlevci
Planina Skradska
Skrad
Veliko Selce
Donje Primišlje
Donji Nikšić
Rastoke
Slunj
Točak
Vrbanj
Starigrad
Tribanj
Donje Vrapče
Jankomir
Malešnica
Špansko
Stenjevec
Strmec Stubički
Stubičke Toplice
Donji Stupnik
Gornji Stupnik
Brezje
Jagnjić Dol
Kalinovica
Kerestinec
Nedešćina
Novaki
Orešje
Ružići
Strmec
Šumber
Sveta Nedelja
Svetonedeljski Breg
Sveti Filip i Jakov
Blaževdol
Bukevje
Donja Zelina
Donje Psarjevo
Obrež Zelinski
Delići
Gradina
Heraki
Kloštar
Kontešići
Krunčići
Marasi
Perini
Selina
Stranići kod Lovreča
Sveti Lovreč
Sveti Petar u Šumi
Bibići
Bokordići
Boškari
Butkovići
Čabrunići
Cukrići
Foli
Juršići
Kranjčići
Peresiji
Raponji
Režanci
Salambati
Smoljanci
Štokovci
Svetvinčenat
Tar
Vabriga
Brečevići
Jakovici
Kringa
Muntrilj
Radetići
Tinjan
Žužići
Tisno
Kamenica Skradnička
Potok Tounjski
Tounj
Jarun
Knežija
Prečko
Srednjaci
Vrbani
Rudeš
Trešnjevka
Voltino
Cvjetno naselje
Kanal
Savica
Sveti Križ
Tuheljske Toplice
Udbina
Babići
Bašanija
Čepljani
Crveni Vrh
Finida
Juricani
Katoro
Lovrečica
Materada
Murine
Petrovija
Savudrija
Seget
Sveta Marija na Krasu-dio
Umag
Vilanija
Zambratija
Bronx
Centar
Centar
Galženica
Gornje Rakarje
Kromosovo naselje
Kurilovec
Pleso
Podbrežnica
Velika Gorica
Buševec
Donja Lomnica
Donje Podotočje
Gradići
Gudci
Kuče
Lukavec
Mala Buna
Okuje
Petrovina Turopoljska
Ribnica
Šiljakovina
Staro Čiće
Velika Mlaka
Vukovina
Gornja Trnovitica
Bribir
Drivenik
Grižane-Belgrad
Tribalj
Kosi
Marčelji
Marinići
Mladenići
Saršoni
Sroki
Viškovo
Anžići
Babudri
Bačva
Barat
Benčani
Cvitani
Farini
Gambetići
Košutići
Legovići
Milanezi
Radoši kod Višnjana
Radovani
Rafaeli
Rapavel
Strpačići
Štuti
Sveti Ivan
Višnjan
Vranići kod Višnjana
Ženodraga
Žikovići
Baldaši
Brig
Danci
Ferenci
Jadruhi
Markovići
Mekiši kod Vižinade
Staniši
Velići
Vižinada
Vrh Lašići
Vodice
Barbariga
Batvači
Gajana
Galižana
Majmajola
Peroj
Savičenta
St.Celija
Vodnjan
Krivaja Vojnićka
Selakova Poljana
Garica
Kampelje
Risika
Vrbnik
Luka
Vrbovec
Blaževci
Bunjevci
Dokmanovići
Draga Lukovdolska
Gomirje
Hajdine
Hambarište
Jablan
Klanac
Ljubošina
Lukovdol
Moravice
Moravice
Plemenitaš
Radoševići
Severin na Kupi
Tuk
Veliki Jadrč
Vrbovsko
Vučinići
Vujnovići
Vrsar
Vrsi
Bili brig
Ist
Gornji Škrnik
Brezovica
Centar
Jablanovec
Kupljenovo
Martinšćina
Cere
Debeljuhi
Domijanići
Gradišće
Klimni
Križanci
Kršanci
Laginji
Modrušani
Orbanići
Žagrići
Žminj
Žminj
Prezzo:
Superficie:
Parole chiave:
Istria
Riviera di Abazzia
Fiume
Krk
Riviera di Crikvenica-Vinodol
Gorski kotar
Zagabria
Tour virtuale
Nuovo nell'offerta
Immobili esclusivi
Occasioni
Prima fila al mare
Immobile commerciale
Il mio profilo
Racconta al nostro agente cosa stai cercando
Acquisto
Vendita
Tipo di immobile:
*
--scegli--
Appartamento
un appartamento
Casa
Terra
Locali commerciali
Box auto
Altro
Posizione:
*
Superficie:
*
m2
Prezzo:
*
E-mail:
*
Ho letto e accetto
l'informativa sulla privacy
.
Tipo di immobile:
*
--scegli--
Appartamento
un appartamento
Casa
Terra
Locali commerciali
Box auto
Altro
Posizione:
*
Superficie:
*
m2
Prezzo:
*
E-mail:
*
Ho letto e accetto
l'informativa sulla privacy
.